Skip to main content

40 Constitution Way

$1,350,000

Queensbury, NY 12827

4 Bedrooms
3 full , 1 partial Bathrooms
2.09 Acres

Julie Bonacio
Julie & Co Realty LLC

180 days on CliftonPark.com

to be built home!

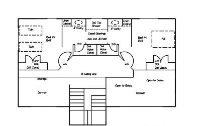
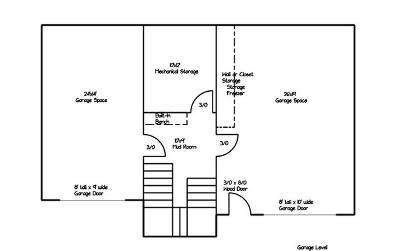
40 Constitution Way. A Hidden Gem located minutes to Lake George on the southeast corner of Kattskill and Warner Bays. Only 10 homesites in this private partially built out neighborhood with a beautiful wooded mountainous setting. Less than a half mile from Lake George. This beautiful spec on a 2.09 acre lot with a Modern Mountain Cottage style home just under 2800SF - including its own 1st floor primary suite wing. One of the last permitted Natural Gas homes will feature an Indoor/Outdoor see-through fireplace from the great room out to the Timber Frame porch. The home is going to be built into the rocky terrain creating your own mountain paradise - plans and survey attached.

Features

  • Price: $1,350,000.00
  • Lot Size: 2.09 Acres
  • 4 Bedrooms
  • 3 full , 1 partial Bathrooms
  • Zip: 12827


Location

Did we miss one? Did one of these places close? Send us a note!